一、工程概况
成都华润万象城苹果店是苹果公司在成都也是西南地区的第一家旗舰店。该项目位于成都市成华区华润万象城内。万象城项目是华润集团在成都开发的大型商业综合体,为新落成的项目。为满足苹果旗舰店的使用要求进行了大规模的结构改造,改造内容包括抽柱10根、新增钢结构桁架、柱截面加大、静力切割、碳纤维布粘贴加固、粘钢加固、新增剪力墙等。工程总造价达2500万元。本次改造加固施工于2012年3月1日开始至2012年6月10日竣工,历时102天,按照合同工期顺利完工交付。
二、工程特色
1、根据建筑设计要求,抽柱10根,原结构9mx9m单跨空间变成27mx36m的大空间。10根柱为裙房首层连续结构框架柱,裙房6层,地下3层。
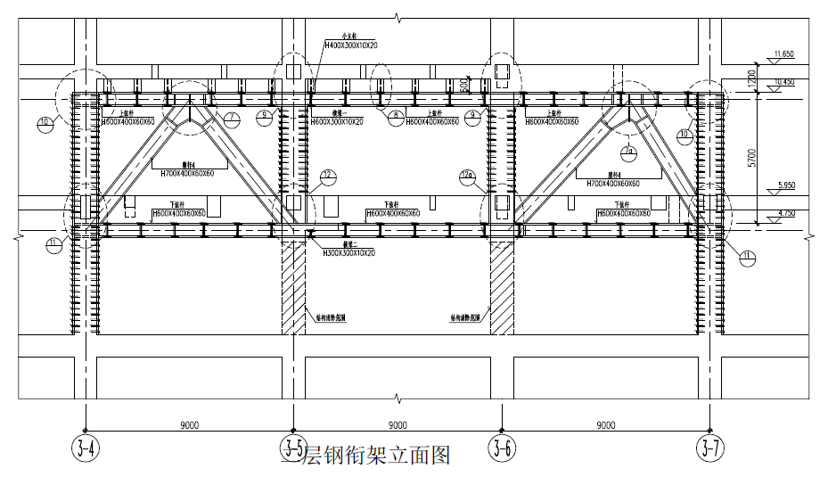
3、大体量钢结构室内吊装:二层室内大型钢构件安装,单品钢衔架达120吨,钢结构总重量达800余吨。
4、拔柱过程中,为解决截柱后瞬间的应力释放过大的问题,我们采用静力切割配合凿除、保留部分主筋的方法,然后逐根截断主筋来达到应力逐步释放的目的。
5、加固施工中的混凝土材料采用了我司研发的特种加固混凝土,保证了本工程工期和质量。
6、抽柱及加固全过程中,同济大学结构专家对整体结构进行了实时监测,整体结构无变形。


拆除柱平面图及二层钢桁架立面图


室内钢构件吊装


钢桁架安装完成 柱包钢


柱加大截面


二层新增剪力墙