
一、工程概况
海宁龙祥大酒店位于浙江省海宁市市区(临近海昌路)。海宁龙祥大酒店主体为一幢22层钢筋混凝土框架-剪力墙结构房屋,裙房中间部分9层,两侧各3层。应业主要求,将3楼普通办公室改造为大开间的大会议室和大型宴会厅。我司承接了对裙房3层进行抽柱改造工程的设计和施工任务。
二、工程特色
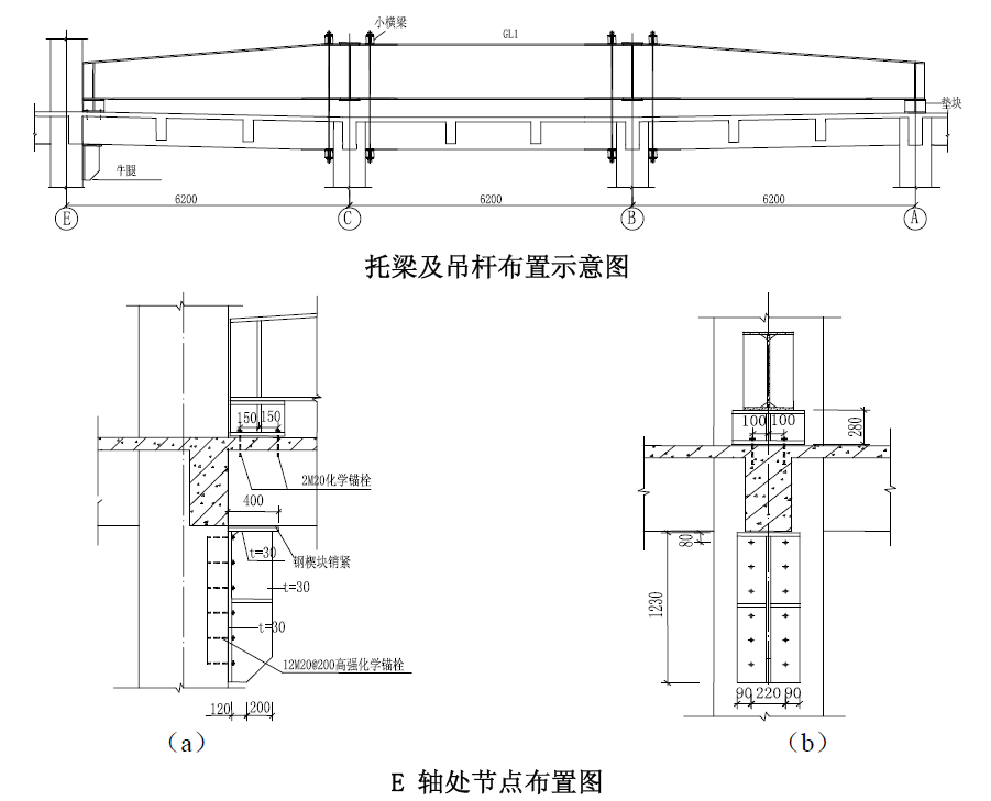
1、抽柱6根,由原结构3跨连续梁转换成22.8米单跨的大空间,满足酒店提升使用功能的要求。
2、针对项目特殊情况自行创新设计托梁悬挂加固技术,不改变使用净空。抽柱前先对梁施加预应力,使原结构受力状态不发生改变,抽柱过程中进行现场应变检测,抽柱后原梁的挠度基本保持不变。
3、施工工期短,快速优质地完成施工任务,受到业主好评。
4、文明施工,施工过程中不影响酒店正常营业。









